Zum Inhalt springen

Moderne Bürofläche in 1210 Wien – Flexibel, klimatisiert und perfekt für Ihr Business!

Objektdetails

  • Objekt Büro
  • Status Verfügbar
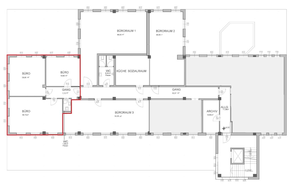
  • Nutzfläche 94 m²
  • Bürofläche 94 m²
  • Gesamtfläche 94 m²

Die angegebenen Flächeninformationen verstehen sich gerundet.

Preisinfo

  • Miete 1.250,00 EUR
  • Miete p. m² 13,30 EUR
  • Betriebskosten 240,00 EUR
  • Betriebskosten p. m² 2,55 EUR

Alle angeführten Kosten verstehen sich pro Monat exkl. 20 % Mehrwertsteuer.

Beschreibung

Zur Vermietung gelangt eine abgeschlossene Bürofläche in der 2. Etage einer modernen Shared-Office Anlage im Industriegebiet Strebersdorf, fußläufig von der Schnellbahnstation Strebersdorf erreichbar.

Die Büroflächen sind durchgängig mit Parkettböden ausgestattet, Gang und Sanitärflächen verfliest. Die Büroflächen sind Spiegelrasterlampen versehen, die Gangflächen haben eine angehängte Decke. Die Raumhöhe in den Büros ist 2,60 m. Die südseitigen Fenster haben einen außenliegenden Sonnenschutz. Die Flächen werden zentral beheizt und sind durchgängig klimatisiert. 

Auf der Liegenschaft stehen auf Anfrage Tiefgaragenstellplätze zur Verfügung.

Die Büroflächen können derzeit noch erweitert werden. Die Flächen werden langfristig vermietet.

Die Stromlieferung wird kombiniert mit der hauseigenen PV-Anlage und gemeinsam abgerechnet.

Bezug ab sofort möglich.

Hinweis gemäß Energieausweisvorlagegesetz: Ein Energieausweis wurde vom Eigentümer bzw. Verkäufer, nach unserer Aufklärung über die generell geltende Vorlagepflicht, sowie Aufforderung zu seiner Erstellung noch nicht vorgelegt. Daher gilt zumindest eine dem Alter und der Art des Gebäudes entsprechende Gesamtenergieeffizienz als vereinbart. Wir übernehmen keinerlei Gewähr oder Haftung für die tatsächliche Energieeffizienz der angebotenen Immobilie.

Wir weisen darauf hin, dass zwischen dem Vermittler und dem zu vermittelnden Dritten ein familiäres oder wirtschaftliches Naheverhältnis besteht.

Der Vermittler ist als Doppelmakler tätig.

Kontakt & Anfrage

Lukas Richter

Immobilientreuhänder
Allgem. beeideter und gerichtlich zertifizierter Sachverständiger, Founder & CEO

richter@industriemakler.at
+43 664 39 08 387

*“ zeigt erforderliche Felder an

Dieses Feld dient zur Validierung und sollte nicht verändert werden.